Eladó családi ház Táborfalva 65 000 000 Ft

Leírás


Táborfalván kínálunk eladásra egy nagyon jó állapotú, önálló családi házat.

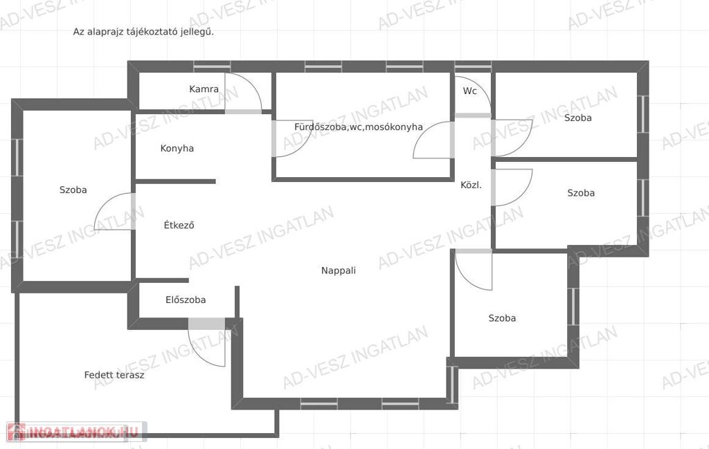
A 120m2-es ingatlan, 1041m2-es összközműves telken helyezkedik el, csendes környéken.

A ház nagysága, és szobaszáma lehetővé teszi akár nagy család részére is a kényelmes együttélést.

Kialakításra került az ingatlanban 4 hálószoba, amerikai konyhás nappali, kamra, előszoba, wc, fürdőszoba, közlekedő, fedett terasz.

A ház részben alápincézett, beton alapra, tégla falazattal ,cserép fedéssel, fa födémmel épült 2007-ben.

Szigetelt, a központi fűtés gáz cirkóról, és vegyes tüzelésű kazánról egyaránt üzemeltethető, de klíma, és kandalló is rendelkezésre áll.

Az összkomfortos, tehermentes ingatlan hitelezhető.

Ha Ön egy kényelmes, tágas, világos, jó állapotú otthont keres csendes környéken, akkor hívjon, megmutatom ezt a remek házat!

Kizárólag irodánk kínálatában megtalálható.

 

Bocskainé Krisztina

+36-30/221-3336

Családi ház részletei

Ár: 65 000 000 Ft
Méret: 120 négyzetméter
Azonosító: 11573254
Irodai azonosító: 674400244
Telek: 1041 négyzetméter
Ingatlan állapota: Kitűnő
Jelleg: családi ház
Építőanyag: Tégla
Fűtés jellege: Cirkó
Komfort fokozat: Összkomfort
Egész szobák: 2
Fél szobák: 3